6524 AL-129
Winfield, Alabama 35594
$1,975,000
8 Baths
24,227 SQ. FT.
22.62
6524 AL-129
Winfield, Alabama 35594
$1,975,000
8 Baths
24,227 SQ. FT.
22.62
Overview
NEW COMMERCIAL OPPORTUNITY
Located in the I-22 Gateway Industrial Park, this state-of-the-art facility can serve multiple sectors of industry and has separate in-house administrative offices in place as well as an independent office building. Only a minute from the interstate with easy ingress and egress for semis and equipment. This flex property could be utilized for a fitness center, a venue for trade shows, sporting events, car and truck shows and open markets. 200+ employee parking and acreage to expand
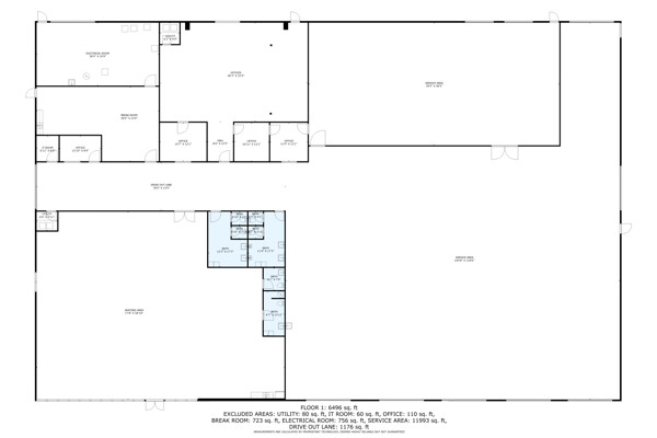
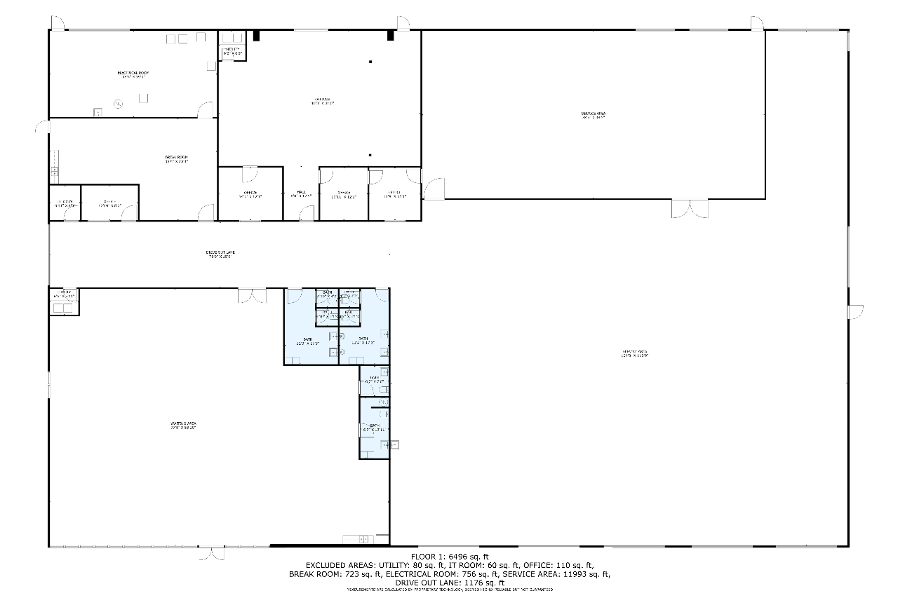
Industrial buidling:22,627 sq ft, 14.03 acres, 25ft ceiling and 20ft at sides, fully insulated, 10ft up metal walls in shop area, 20' column spacing, concrete 6", 11 electric roll up doors (2 with lowered docks and 1 with back in loading dock), 3 phase power, pull air hose reels stationed throughout shop area, industrial air compressor, LED lights, Bosch fire detection system, sprinkler system, mounted fans and ventilation, large fully furnished customer waiting area with kitchenette and men's and women's bathroom, employee break room with kitchenette, administrative/office area furnished with desks, cubicles and conference table, several private offices, 16 campsites each with 30 amp plug in and sewer hookup, employee pavilion.
Office building: 1,600 sq ft, 12.59 acres, 10ft high ceiling, 200-amp single power, 3 private offices and open common area, men's and women's bathroom, fire detection and sprinkler systems.
1 hour to Birmingham, AL
2 hours to Huntsville, AL
1 hour to Tupelo, MS
5 minutes to UPS Distribution Center
Located in the I-22 Gateway Industrial Park, this state-of-the-art facility can serve multiple sectors of industry and has separate in-house administrative offices in place as well as an independent office building. Only a minute from the interstate with easy ingress and egress for semis and equipment. This flex property could be utilized for a fitness center, a venue for trade shows, sporting events, car and truck shows and open markets. 200+ employee parking and acreage to expand
Industrial buidling:22,627 sq ft, 14.03 acres, 25ft ceiling and 20ft at sides, fully insulated, 10ft up metal walls in shop area, 20' column spacing, concrete 6", 11 electric roll up doors (2 with lowered docks and 1 with back in loading dock), 3 phase power, pull air hose reels stationed throughout shop area, industrial air compressor, LED lights, Bosch fire detection system, sprinkler system, mounted fans and ventilation, large fully furnished customer waiting area with kitchenette and men's and women's bathroom, employee break room with kitchenette, administrative/office area furnished with desks, cubicles and conference table, several private offices, 16 campsites each with 30 amp plug in and sewer hookup, employee pavilion.
Office building: 1,600 sq ft, 12.59 acres, 10ft high ceiling, 200-amp single power, 3 private offices and open common area, men's and women's bathroom, fire detection and sprinkler systems.
1 hour to Birmingham, AL
2 hours to Huntsville, AL
1 hour to Tupelo, MS
5 minutes to UPS Distribution Center
Type
Commercial Real Estate
Parking Space
200 +
Year Built
2019
School District
Winfield City
Price
$1,975,000
MLS#
23-2166
Style
metal industrial
Local Weather
|
|
|
|
|
|
|
|